Khi bắt tay vào xây dựng một ngôi nhà, câu hỏi đầu tiên của hầu hết gia chủ là: “Tôi cần bản vẽ thiết kế như thế nào để vừa đẹp, vừa chắc chắn, vừa tiết kiệm?”
Câu trả lời nằm ở bảng vẽ thiết kế nhà – bộ tài liệu quan trọng nhất quyết định toàn bộ hình dáng, công năng và chi phí của ngôi nhà. Bài viết này sẽ là cẩm nang chi tiết nhất năm 2025, giúp bạn hiểu rõ từ khái niệm, lợi ích, các loại bản vẽ, cho đến cách đọc, sử dụng và tránh sai lầm thường gặp.
Bảng vẽ thiết kế nhà là gì?
Bảng vẽ thiết kế nhà là tập hợp những bản vẽ kỹ thuật thể hiện chi tiết kiến trúc, kết cấu, công năng, hệ thống điện – nước và nội thất của một công trình nhà ở.
Một bảng vẽ hoàn chỉnh thường gồm:
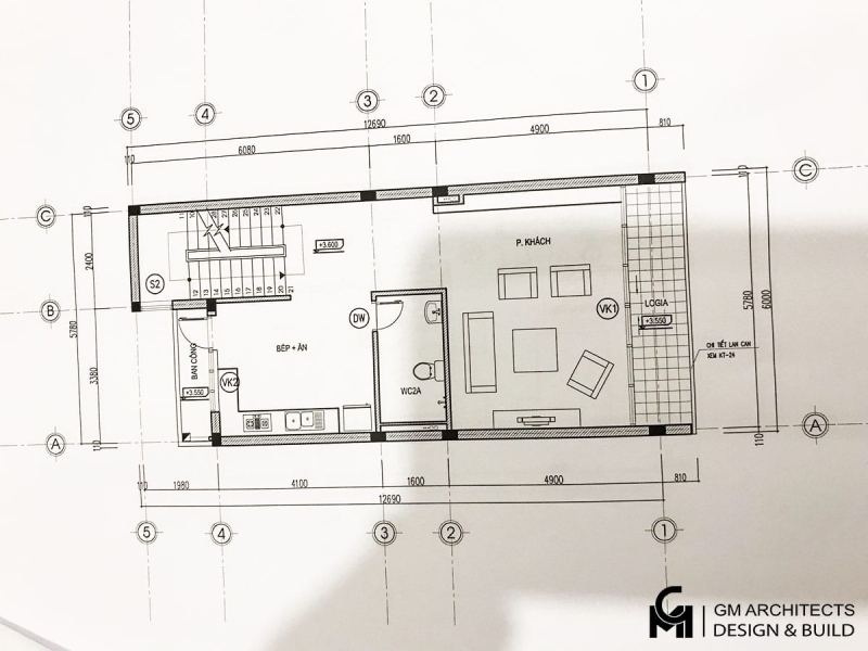
- Bản vẽ kiến trúc: mặt bằng, mặt đứng, mặt cắt, phối cảnh.
- Bản vẽ kết cấu: móng, dầm, sàn, cột, mái.
- Bản vẽ hệ thống điện – nước (MEP): sơ đồ cấp thoát nước, chiếu sáng, ổ cắm, công tắc.
- Bản vẽ nội thất & chi tiết: cầu thang, cửa, tủ, lan can…
Có thể hiểu đơn giản: bảng vẽ chính là “ngôn ngữ chung” giữa kiến trúc sư – kỹ sư – thợ thi công – chủ nhà.
Tầm quan trọng của bảng vẽ trong kiến trúc & xây dựng
- Giúp hình dung ngôi nhà trước khi xây: gia chủ dễ dàng tưởng tượng không gian sống thực tế.
- Hạn chế sai sót thi công: mọi chi tiết được thể hiện rõ ràng, tránh mâu thuẫn khi xây dựng.
- Cơ sở xin giấy phép xây dựng: bản vẽ là hồ sơ bắt buộc khi nộp cho cơ quan chức năng.
- Dự toán chi phí chính xác hơn: có thể bóc tách khối lượng vật liệu từ bản vẽ.
- Tiết kiệm thời gian & công sức: tránh việc chỉnh sửa nhiều lần trong quá trình xây.
Thực tế, nhiều gia đình tự xây mà không có bản vẽ chuẩn đã gặp tình trạng “ngôi nhà trên giấy khác hoàn toàn ngoài đời” – dẫn đến phát sinh chi phí gấp đôi.
Các loại bản vẽ trong hồ sơ thiết kế nhà
Một bộ hồ sơ thiết kế nhà đầy đủ thường bao gồm:
Bản vẽ kiến trúc
- Mặt bằng tổng thể: bố trí phòng, công năng theo tầng.
- Mặt đứng: thể hiện mặt tiền và các mặt bên.
- Mặt cắt: cắt dọc/cắt ngang để thấy cao độ, chiều cao tầng.
- Phối cảnh 3D: hình ảnh mô phỏng như thật.
Bản vẽ kết cấu
- Chi tiết móng, dầm, cột, sàn, mái.
- Đảm bảo ngôi nhà an toàn – bền vững – chịu lực tốt.
Bản vẽ hệ thống điện – nước (MEP)
- Vị trí ổ cắm, công tắc, bóng đèn.
- Sơ đồ cấp thoát nước, máy bơm, bồn chứa.
- Hệ thống chống sét, internet, điều hòa.
Bản vẽ nội thất & chi tiết
- Cửa, cầu thang, lan can, tủ bếp, trần thạch cao.
- Nội thất cơ bản giúp ngôi nhà tiện nghi & thẩm mỹ.
Quy trình thực hiện bảng vẽ thiết kế nhà
Để có một bộ hồ sơ hoàn chỉnh, kiến trúc sư thường đi theo 6 bước:
- Khảo sát & đo đạc hiện trạng: xem diện tích, địa hình, hướng đất.
- Lên phương án mặt bằng sơ bộ: phác thảo bố trí phòng.
- Thiết kế concept: đưa ra phong cách kiến trúc (hiện đại, tân cổ điển, tối giản…).
- Dựng phối cảnh 3D: để gia chủ duyệt.
- Triển khai bản vẽ kỹ thuật chi tiết.
- Bàn giao & chỉnh sửa theo góp ý.
Quy trình này đảm bảo từ ý tưởng đến bản vẽ chi tiết đều khớp thực tế.
Nguyên tắc & tiêu chuẩn khi vẽ bản vẽ kiến trúc
- Tỷ lệ chuẩn: thường dùng 1/50, 1/100, 1/200.
- Ký hiệu thống nhất: cửa, cầu thang, cột, thiết bị điện – nước.
- Kích thước rõ ràng: thể hiện chiều dài, rộng, cao.
- Bố cục logic: dễ đọc, dễ triển khai.
- Phù hợp tiêu chuẩn xây dựng Việt Nam (TCVN).
Công cụ & phần mềm hỗ trợ thiết kế bảng vẽ
Năm 2025, kiến trúc sư có nhiều lựa chọn:
- AutoCAD: chuẩn mực vẽ kỹ thuật 2D.
- SketchUp + Vray/D5 Render: dựng hình 3D nhanh, trực quan.
- 3ds Max + Corona/Vray: render nội thất chân thực.
- Revit: thiết kế BIM, đồng bộ kiến trúc – kết cấu – MEP.
- Công cụ AI mới: Coohom, Spacet… giúp thiết kế nhanh hơn.
Tùy nhu cầu, bạn có thể dùng phần mềm miễn phí để phác thảo, sau đó thuê kiến trúc sư triển khai kỹ thuật chi tiết.
Lỗi thường gặp & cách khắc phục khi thiết kế bảng vẽ
- Sai kích thước – tỷ lệ → cần kiểm tra nhiều lần trước in.
- Thiếu chi tiết kỹ thuật → bổ sung bản vẽ chi tiết cửa, cầu thang, lan can.
- Không đồng bộ giữa các bản vẽ → kiến trúc & kết cấu lệch nhau.
- Bản vẽ khó đọc → cần trình bày gọn gàng, ký hiệu thống nhất.
Hướng dẫn đọc & hiểu bảng vẽ thiết kế
- Mặt bằng: xem cách bố trí không gian (phòng, cửa, lối đi).
- Mặt đứng: hiểu hình dáng mặt tiền.
- Mặt cắt: thấy chiều cao, độ dày sàn, mái.
- Ký hiệu thường gặp: cửa (C), cầu thang (ST), điện (E), nước (W).
👉 Người không chuyên chỉ cần nắm 3 yếu tố chính: vị trí phòng, kích thước, chiều cao. Phần kỹ thuật chi tiết để kiến trúc sư & thợ triển khai.
Bảng vẽ thiết kế nhà là nền tảng quan trọng nhất trước khi bạn xây dựng tổ ấm. Một bản vẽ chuẩn không chỉ giúp hình dung ngôi nhà trong tương lai, mà còn tiết kiệm chi phí, thời gian và hạn chế rủi ro.
📌 Nếu bạn đang chuẩn bị xây nhà, hãy:
- Tìm hiểu thật kỹ bản vẽ.
- Chọn đơn vị thiết kế uy tín.
- Yêu cầu bản vẽ đầy đủ kiến trúc – kết cấu – MEP – nội thất.
Nếu bạn đang tìm kiếm đơn vị thiết kế và xây nhà trọn gói uy tín, GM Architects sẽ là lựa chọn phù hợp. Với đội ngũ kiến trúc sư giàu kinh nghiệm, xưởng nội thất riêng và quy trình thi công chuyên nghiệp, chúng tôi cam kết mang đến cho bạn giải pháp thiết kế tối ưu – thi công chuẩn chỉ – chi phí minh bạch.
👉 Liên hệ ngay GM Architects để được tư vấn bản vẽ thiết kế nhà chi tiết miễn phí phù hợp với nhu cầu của bạn.





